المپدیا

دانش‌نامه‌ی المپیاد کامپیوتر ایران

ابزار کاربر

ابزار سایت


سوالات المپیاد:مرحله ی اول:دوره ی ۷:سوال ۲۹

سوال ۲۹

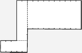
دیوارهای خارجی یک باغ٬ مستقیم هستند و هر یک از این دیوارها با دو دیوار مجاورش یک زاویه‌ی قائمه می‌سازد. این دیوارها با هم یک دور بسته را می‌سازند که باغ را محصور می‌کند. اگر بدانیم که طول دیوارهای این باغ٬ به ترتیب برابر ۳٬۲٬۵٬۴٬۱۰٬۵٬۱۲ و ۷ است٬ مساحت این باغ چقدر است؟

  1. ۷۴
  2. ۸۴
  3. ۱۳۵
  4. ۵۳
  5. ۷۷

پاسخ

گزینه (۱) درست است.

باغ به شکل زیر می‌باشد٬ اگر آن را به سه مستطیل تقسیم کنیم مساحت آن برابر خواهد بود با:

$$5\times10+2\times7+2\times5=74$$


ابزار صفحه